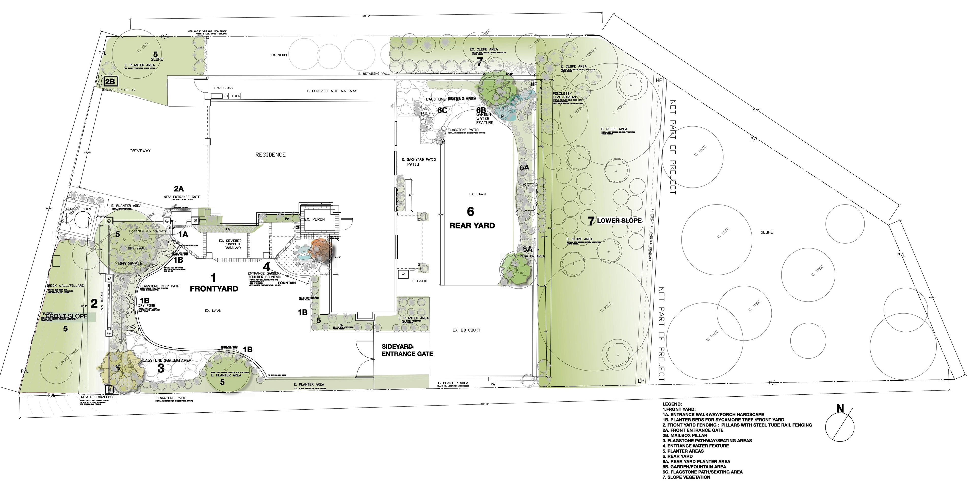
A newly retired couple requested a front yard seating area to connect with visiting grandchildren and neighbors passing by. The project became a resemblance of the natural setting connecting the owners to wildlife open-space at the edge of the street. The existing mature California Sycamore tree was highlighted as the anchoring focal point to be surrounded by a dry creek bed. The childhood steppingstone pathway curved around the sycamore tree leading to the flagstone seating area. The custom brick pillar/ wrought iron fence was designed to add family safety, yet a  transparent layer to the close knit community. 
The plant palette mimicked the natural riparian settings, with a mix of grasses, juncus, pacific iris and dogwoods. The finishing touch is the backyard boulder creek waterfall enjoyed primarily by the birds and grandchildren who have decided to use it for imaginary play complete with wildlife. 
NEW ENTRANCE GATE: BRICK/WROUGHT IRON GARDEN WALL
NEW ENTRANCE GATE: BRICK/WROUGHT IRON GARDEN WALL
DRY CREEK
DRY CREEK
FLAGSTONE PATHWAY/DRY CREEK
FLAGSTONE PATHWAY/DRY CREEK
FRONT YARD FLAGSTONE SEATING AREA
FRONT YARD FLAGSTONE SEATING AREA
NEW BRICK FRONT PORCH
NEW BRICK FRONT PORCH
BACKYARD LIVE CREEK WATER FEATURE
BACKYARD LIVE CREEK WATER FEATURE
WATER FEATURE PLAY AREA
WATER FEATURE PLAY AREA



Back to Top